Описание
Окрасочно-сушильная камера с дизельной горелкой Riello и приточно-вытяжным тепловентиляционным агрегатом WDK-310. Используется для сушки лакокрасочных покрытий и организации технологических процессов окраски. Боковые стены состоят из сэндвич-панелей (негорючий пенополистирол толщиной 53 мм) и являются теплоизоляционными. Визуальный контроль позволяют осуществить 3-х створчатые ворота со встроенными смотровыми окнами. Можно установить дополнительный комплект ворот с целью организации сквозного проезда. Установить приточно-вытяжную группу с любой стороны в процессе монтажа позволяет унифицированная конструкция.
Встроенная трехступенчатая система фильтрации воздуха дает возможность очистить воздух от пыли и примесей на 95%. Камера оснащена верхним наклонным освещением на 8 светильников и боковым вертикальным освещением на 8 светильников.
Широкий выбор различных оснований для быстрого и удобного монтажа в любых помещениях со сложными участками позволяет оптимизировать воздушные потоки для любых технологических процессов окраски, продувки и сушки. Пульт управления расположен на внешней стороне стены и может устанавливаться в любом удобном месте.
Особенности и преимущества:
• Рассекатели воздушного потока обеспечивают 100% прохождение подаваемого воздуха через зону нагрева теплообменника и позволяют существенно экономить топливо.
• Подходит для работы всеми типами жидких красок, в том числе на водной основе.
• Металлическое основание и 100% усиленный решетчатый пол.
• Универсальная конструкция расположения вентиляционной группы.
• Шиберные заслонки регулировки воздушного потока.
Комплектация:
WDK-310 Окрасочно-сушильная камера
Характеристики
Бренд
WIEDERKRAFT
Подключение
380В, 50 Гц
Гарантия
1 год
Цвет
Белый
Скорость потока воздуха, м/с
0,25-0,35 м/с
Приточный вентилятор, тип
Центробежный
Приточный вентилятор, производительность
24000 м?/ч,
24000 м³/ч
Общая потребляемая мощность
17,5 кВт
Приточный вентилятор, мощность
8 кВт
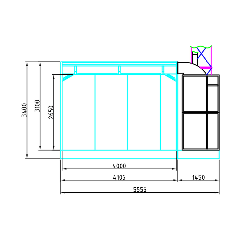
Внешние размеры (ДхШхВ)
7006х5356х3400 мм
Внутренние размеры (ДхШхВ)
6900х4000х2650 мм
Размеры въезда
3000х2600 мм
Вытяжной вентилятор, тип
Центробежный
Вытяжной вентилятор, мощность
5,5 кВт
Вытяжной вентилятор, производительность
21000 м?/ч,
21000 м³/ч
Система нагрева
Дизельная горелка Riello 40 F20, 202 кВт
Верхнее освещение
8 светильников по 4 LED-лампы
Боковое освещение
8 светильников по 2 LED-лампы
Основание
Металлическое
Длина, м
9
Высота, м
2.6
Базовая единица
шт
Группа товарной категории
Окрасочно-сушильные камеры
Товарная категория
ОСК
Ценовая группа
ОСК
Ширина, м
2.4
Объем, м³
56.16
В упаковке, шт
1
Нагрузка колеса на решетку (макс.)
800 кг
Температура в режиме окраски
20°C
Температура в режиме сушки
60°C
Отзывы
Отзывов еще никто не оставлял
